Liebe Leute, 
wir stehen ganz am Anfang unserer Hausplanung (Nordburgenland) und haben dazu schon viele interessante Threads gelesen. Nun stehen wir an einer ersten Hürde. Zunächst zu unserem Bauvorhaben: 
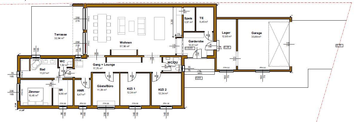
Unser Grundstück ist ziemlich schmal (15m) dafür ziemlich lang (55). Bauen daher halboffen am Nachbarsgrundstück an bzw. ist das von der Gemeinde her auch Vorschrift. Das Nachbargrundstück ist auf dieser Seite nicht verbaut, uns trennt derzeit nur eine Mauer. 
Wir wollen ebenerdig bauen, ohne Keller und interessieren uns sehr für eine 
Holzbauweise. Haben dazu auch schon erste Entwürfe von einer Holzbaufirma bekommen, die uns schon ganz gut gefallen. Schicke ich gerne mit.     
 
  
Generell hätten wir auf der angebauten Seite mit Küche, Wohnzimmer, Essplatz gerne ein Satteldach (auf der anderen, nicht angebauten Seite in den Schlafbereichen/Bad/HWR/Büro soll ein Flachdach drauf), dass der Länge Richtung Garten geht und offen ist, heißt ohne Zwischendecke, so dass wir über der Küche/Wohnzimmer auch Dachfenster einbauen könnten wegen der Belichtung. 
Unsere Problematik ist nun das 
Dach bzw. der Brandschutz und damit die Belichtung auf der angebauten Seite. Bei der Holbauweise müssten wir lt. Baufirma eine Brandschutzmauer an der bebauten Grundgrenze einziehen, was ja an sich nicht das Problem ist. Nur müssten wir eben lt. Baufirma eine Zwischendecke einziehen. Somit wäre der Traum von einem offenen Satteldach bzw. Dachfenster geplatzt. 
Jetzt fragen wir uns, da wir uns nicht unbedingt auf die Holzbauweise versteifen, ob bei einem Massivbau mit Ziegel das ebenso sein müsste? Oder ob Ziegel mit entsprechender Dämmung/Putz nicht die Brandschutznormen erfüllen würdenund wir somit ohne Zwischendecke bauen könnten. 
Wie gesagt, stehen noch ziemlich am Anfang und sind in Sachen Hausbau Laien ;) Freuen uns auf eure Antworten. Lg 
  Gesamten Text anzeigen