« Hausbau-, Sanierung  |

Änderungseinreichung und Bauaufsicht für Carport

Teilen: facebook    whatsapp    email
  •  Amateure
12.4.2026 0
0
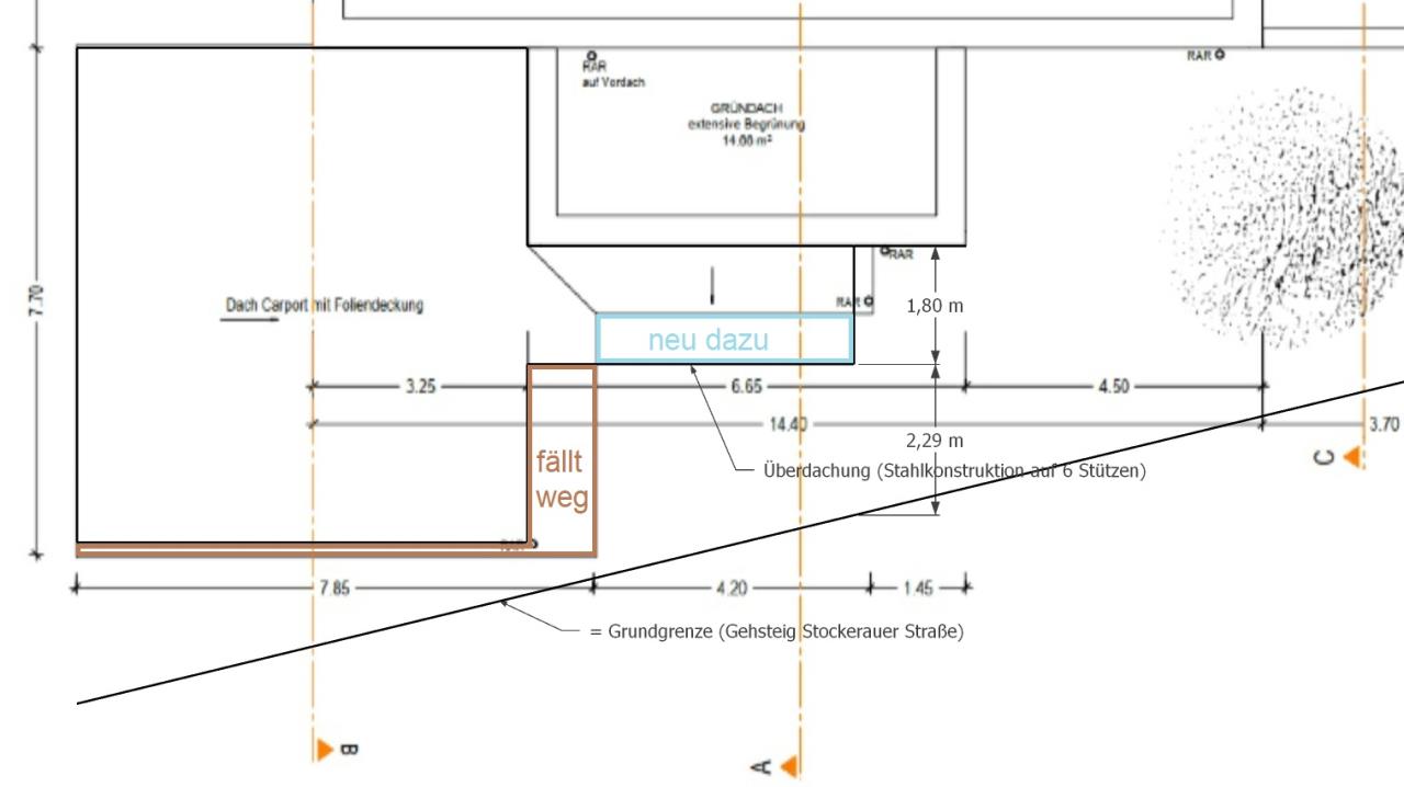
Wir wollen ein Stahl Carport errichten lassen und haben dazu bereits ein passendes Angebot von der Firma Ofentau vorliegen. Obwohl damals bereits mit eingereicht, brauchen wir laut Gemeinde trotzdem wieder einen befugten Planverfasser (Dachfläche ändert sich etwas, siehe Skizze) und auch einen Bauführer (Statik kommt zwar vom Stahlbauer, aber es geht anscheinend va um die Beeinträchtigung vom befahrbaren Stahlbeton Keller, über dessen Wänden zwei der Steher montiert wären). 
Beides müssen wir uns leider erst suchen, daher meine Fragen:

1. Was kann/ darf so was kosten?
2. Hat jemand einen Tipp für mich, wer das übernehmen könnte? Das Ganze spielt sich ab in Niederösterreich, Bezirk Korneuburg

Danke euch im Vorraus!


_aktuell/20260412548709.jpg


_aktuell/20260412182139.jpg





Beitrag schreiben / Werbung ausblenden?
Einloggen

 Kostenlos registrieren [Mehr Infos]

Nächstes Thema: Einfahrt: Vorhandene Betonplatte - welcher Belag?